Traumhafte Penthousewohnung in Gelsenkirchen-Hassel!
Informationen zur Immobilie:
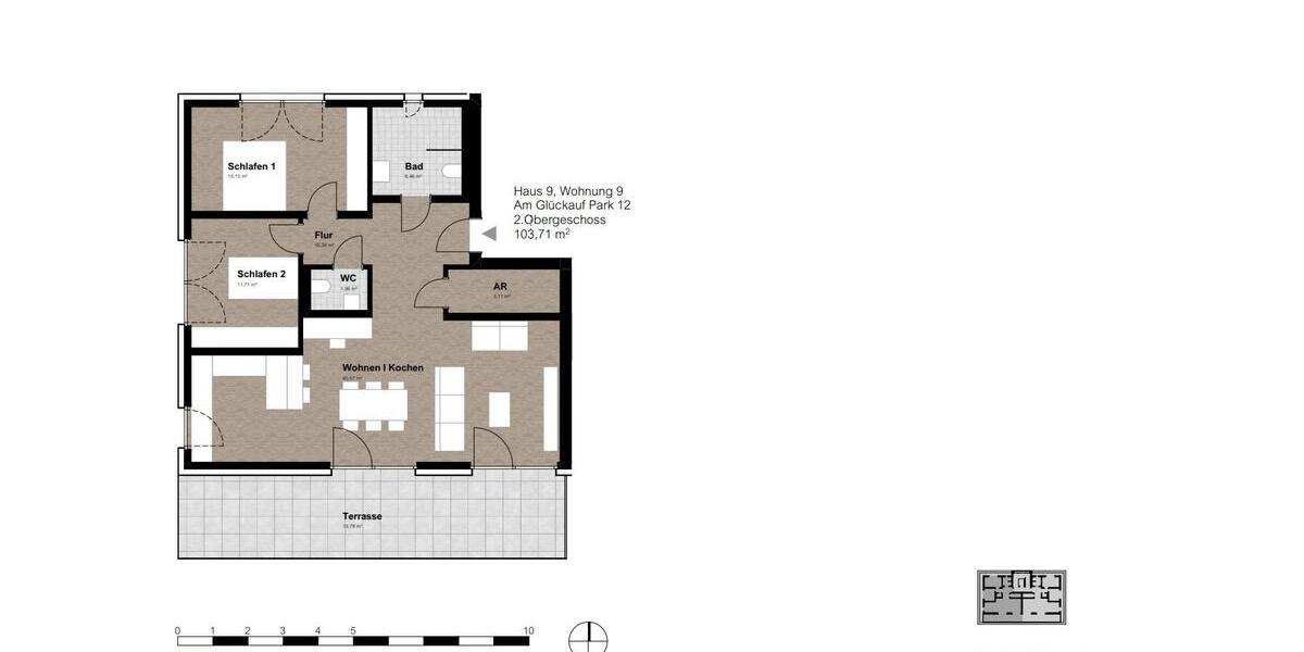
Zimmeranzahl
3
Ort
45896 Gelsenkirchen
Objektart
Haus
Größe
ca. 103,71 m²
1.225 €
Beschreibung:
Mehr zum Angebot Traumhafte Penthousewohnung in Gelsenkirchen-Hassel!:
In Gelsenkirchen-Hassel entsteht ein neues Wohnquartier mit Zukunft: 180 moderne Wohneinheiten in 15 stilvollen Mehrfamilienhäusern – ein Projekt, das Lebensqualität, Nachhaltigkeit und Komfort perfekt vereint.
Unsere Wohnungen sind so konzipiert, dass... mehr erfahren
In Gelsenkirchen-Hassel entsteht ein neues Wohnquartier mit Zukunft: 180 moderne Wohneinheiten in 15 stilvollen Mehrfamilienhäusern – ein Projekt, das Lebensqualität, Nachhaltigkeit und Komfort perfekt vereint.
Unsere Wohnungen sind so konzipiert, dass... mehr erfahren
weitere Häuser